Casa di corte in vendita

Trieste, Str. per Longera - San Giovanni
€ 198.000
3 locali 3 locali
60 Mq 60 Mq
2 bagni 2 bagni

Casa di corte in vendita

Trieste, Str. per Longera - San Giovanni

Descrizione annuncio

LONGERA: casa indipendente, primo ingresso, con lastrico solare e cortile.

La zona in cui si trova la proprietà è estremamente tranquilla e verde, poco distante dal capolinea della Linea 35 e dalla grande viabilità.

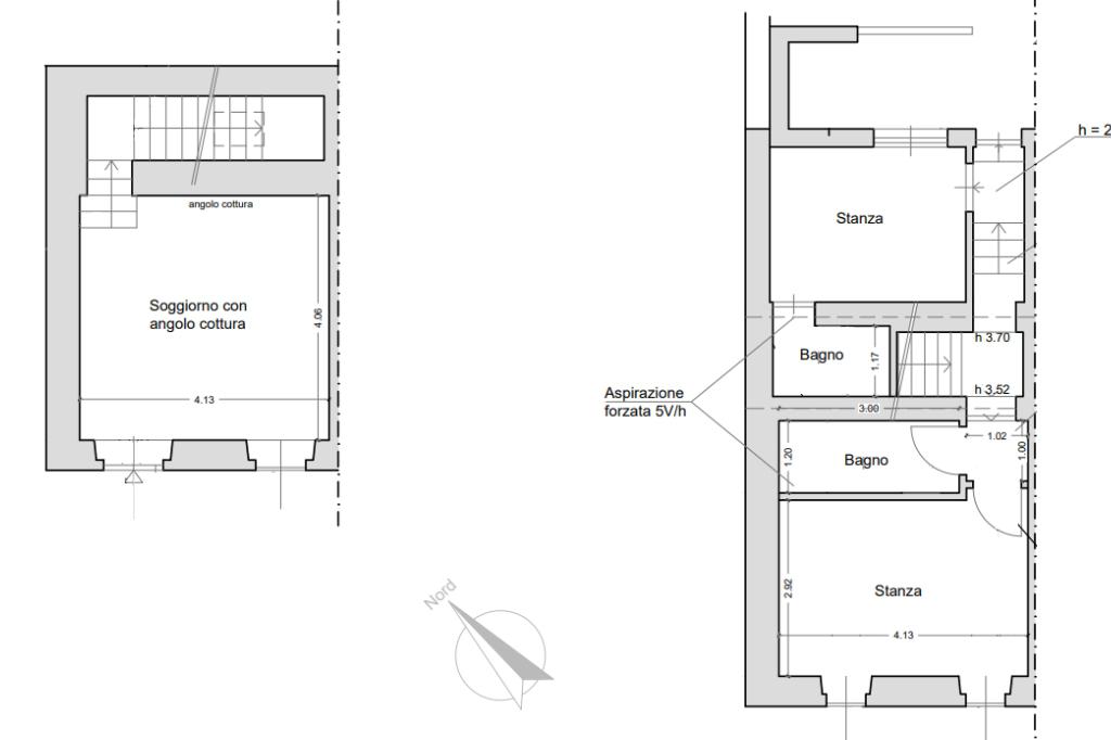
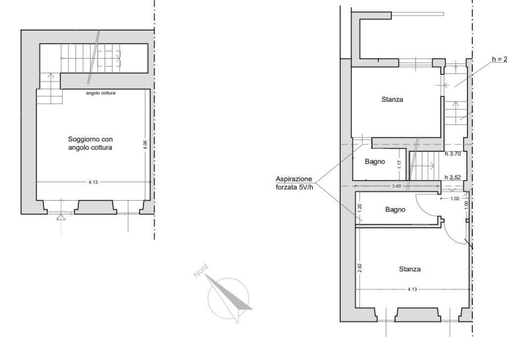
La soluzione è una casetta accostata da un lato, completamente ristrutturata, distribuita su più livelli con cortile e lastrico solare di proprietà.

Al piano inferiore si trova una luminosa zona giorno open space con predisposizione per angolo cottura a induzione.
Al livello superiore si sviluppa la zona notte composta da una camera matrimoniale con travi a vista, due vani sottotetto ad uso ripostiglio, una stanza singola dotata di bagno in camera e un ulteriore bagno completo con box doccia.
Esternamente troviamo il lastrico solare, la centrale termica e un pratico cortile.

L’abitazione è stata oggetto di un radicale intervento di ristrutturazione che, a partire dalle fondamenta per arrivare al tetto, ha portato ad avere oggi un prodotto completamente rinnovato in ogni sua parte con impiantistica nuova e certificata, coibentazione e finiture ricercate.

La consegna dell’immobile è prevista per giugno 2026. APE in fase di rilascio.

Per ulteriori informazioni contattaci allo 040.578083 o via mail tscn6

Per vedere in anteprima tutte le nostre proposte seguite le storie sulla nostra pagina instagram tecnocasa_sangiovanni_trieste

Lo studio 'Immobiliare San Giovanni srl' affiliato a Tecnocasa è a disposizione per valutazioni e consulenze per qualsiasi tipologia di immobile.

Mostra tutto

Nelle vicinanze

Trasporto pubblico Trasporto pubblico
Trieste Aquilinia
Trieste Aquilinia
2,9 Km
v. Marchesetti (incr. Madaro)
v. Marchesetti (incr. Madaro)
260 m
Trasporto pubblico
330 m
Ricariche auto elettriche Ricariche auto elettriche
Eneldrive Basovizza
2,1 Km
Area Science Park
2,1 Km
EnelX EVA+ Science Park Trieste
2,2 Km
EnelX Conad Trieste
2,8 Km
Scuole Scuole
Scuola dell'Infanzia di Longera
260 m
Scuole
340 m
Scuola elementare Fran Milčinski
350 m
Scuola Secondaria Statale di Primo Grado Francesco Rismondo
390 m
Scuola dell'Infanzia Statale Sandro Pertini
440 m
Farmacia Farmacia
Farmacia Melara
540 m
Farmacia Altura
1,7 Km
Farmacia
2,2 Km
Farmacia al Carso
2,3 Km
Costalunga
2,4 Km
Ospedali Ospedali
Ospedale di Cattinara
700 m
Supermercati Supermercati
Supermercato Zazzeron
400 m
Despar
650 m
Crai di Cattinara
780 m
Mio Discount
2,3 Km
Zazzeron
2,3 Km
Negozi Negozi
Negozi
580 m
La bottega come una volta - Eko - B'tega ku anb't
2,1 Km
Viezzoli
2,1 Km
Marc Rudy
2,4 Km
Il pane quotidiano
2,8 Km
Bar Bar
Bar Nildo
1,4 Km
Guštin
2,3 Km
Bar Panetteria di Luca Molinari
2,4 Km
Dancing Paradiso
2,6 Km
Bar da Nerina
2,7 Km
Ristoranti Ristoranti
Osmizza al Corridore
110 m
Trattoria Da Gelmo
460 m
Pizzeria Trattoria Spetic
810 m
Taverna Sturman
1,6 Km
Agriturismo Grgič
1,9 Km
Mostra tutto

Caratteristiche

Rif.:
61185830
Piano:
Su più livelli di 2
Totale piani:
2
Balconi:
1
Terrazzi:
1
Camere da letto:
2
Mostra tutto
Prezzo Prezzo
€ 198.000
Rata mutuo Rata mutuo
€ 925 / mese
Spese annue Spese annue
€ 0
Proponi il tuo prezzoProponi il tuo prezzo

Classe Energetica

Questo immobile è esente da classe energetica
Anno di costruzione:
1900
Riscaldamento:
Autonomo
Tipo impianto:
A pavimento
Tipo alimentazione:
Metano

Ti interessa visionare l'immobile?

Fissa un appuntamento  Fissa un appuntamento

Richiedi informazioni

Clicca su Leggi per aprire l'informativa
* Questi campi sono obbligatori

Calcola il tuo mutuo

Semplice e senza impegno
Anticipo

( % )
Mutuo

( % )

pochi semplici passi

inserisci i tuoi dati
Questionario completato
Grazie per aver richiesto un appuntamento senza impegno con un nostro Consulente del Credito e Assicurativo.

Hai inserito correttamente tutti i dati necessari e a breve riceverai una e-mail con un link da convalidare per inviare i tuoi dati.
Affiliato
Immobiliare San Giovanni Srl
Via Giulia, 108 34126 Trieste (TS)

Il nostro staff


  • Luca Cicuttin
    Affiliato

  • Nicola Capogrosso
    Affiliato

  • Mara Morosi
    Collaboratrice
Via Giulia, 108 34126 Trieste (TS)
Zona: San Giovanni
Mostra su mappa
Affiliato
Immobiliare San Giovanni Srl
Via Giulia, 108 34126 Trieste (TS)

2026 Tecnocasa Franchising S.p.A. - P. IVA 08365160152 - Via Monte Bianco 60/A 20089 Rozzano (MI). Ogni agenzia ha un proprio titolare ed è autonoma. Privacy policy | Policy utilizzo | Cookie policy