Trilocale in vendita

Trieste, Via Giulia - Giardino Pubblico
€ 288.000
3 locali 3 locali
99 Mq 99 Mq
2 bagni 2 bagni

Trilocale in vendita

Trieste, Via Giulia - Giardino Pubblico

Descrizione annuncio

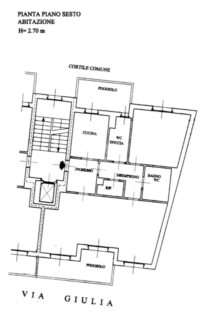
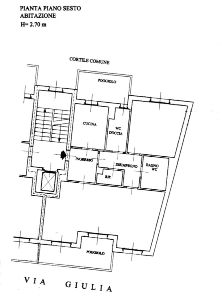
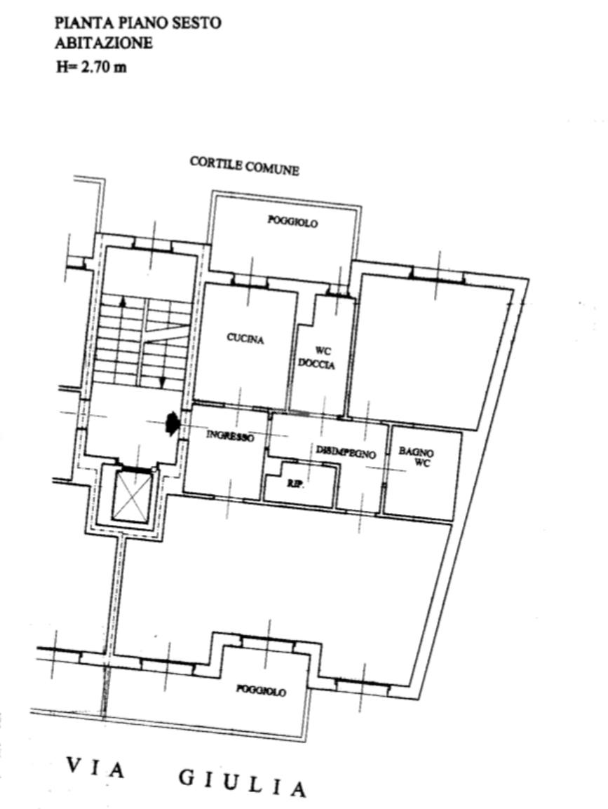
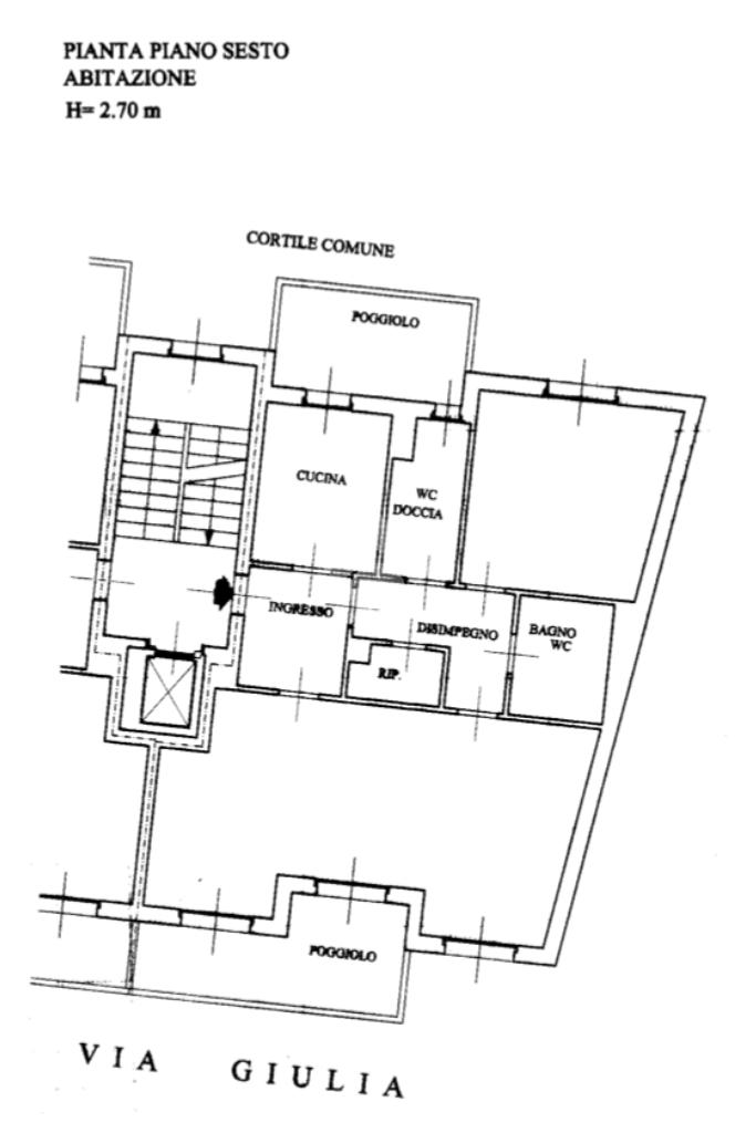
VIA GIULIA: luminoso trilocale con doppio balcone al piano alto di uno stabile SENZA BARRIERE ARCHITETTONICHE.

L’edificio si trova in Via Giulia, importante arteria che collega il rione di San Giovanni al centro città, pertanto la zona risulta strategica e molto ben servita da mezzi pubblici e negozi.

L'alloggio è un trilocale di ampia metratura che si presenta in condizioni veramente ottime.

La zona giorno è composta da una cucina abitabile e da un soggiorno di generose dimensioni, entrambi gli ambienti hanno il proprio terrazzo e risultano quindi ariosi e molto luminosi. La zona notte, separata dall'ingresso da un pratico disimpegno, si compone di due camere da letto di ottima metratura, due bagni e un comodo ripostiglio.

Il condominio, denominato 'Le antiche velerie' è stato costruito all'inizio degli anni 2000, impianti e finiture risultano quindi moderni e di ottima qualità, un particolare da sottolineare è l' assenza di barriere architettoniche, caratteristica rara e molto ricercata nel panorama cittadino.

Il riscaldamento è autonomo.

I tempi di consegna sono brevi.

Per ulteriori informazioni contattaci allo 040.578083 o via mail tscn6

Per vedere in anteprima tutte le nostre proposte seguite le storie sulla nostra pagina instagram tecnocasa_sangiovanni_trieste

Lo studio 'Immobiliare San Giovanni srl' affiliato a Tecnocasa è a disposizione per valutazioni e consulenze per qualsiasi tipologia di immobile.

Mostra tutto

Nelle vicinanze

Trasporto pubblico Trasporto pubblico
stazione di Trieste Centrale
stazione di Trieste Centrale
1,6 Km
Cologna Campo Sportivo
Cologna Campo Sportivo
1,2 Km
Vetta Scorcola
Vetta Scorcola
1,2 Km
Trasporto pubblico
60 m
Università - Sede Centrale e Facoltà di Economia
Università - Sede Centrale e Facoltà di Economia
320 m
Ricariche auto elettriche Ricariche auto elettriche
Eneldrive Comune Di Trieste - Consigli Circoscrizionali
440 m
Eneldrive Ospedale Maggiore Di Trieste
1,0 Km
EnelDrive Granatieri
1,9 Km
Eneldrive Ginestre
2,0 Km
Eneldrive Molo Sartorio
2,6 Km
Scuole Scuole
Scuola Primaria Luigi Mauro
140 m
Collegio Dimesse
180 m
Scuola dell'Infanzia Panizon
220 m
Scuola Primaria Claudio Suvich
240 m
Scuole
390 m
Farmacia Farmacia
Farmacia All'Amazzone Trionfante
370 m
All'Università
420 m
Farmacia
500 m
Alla Salute
770 m
Farmacia Al Centauro
800 m
Ospedali Ospedali
Ospedale Maggiore
1,0 Km
Sanatorio Triestino
1,1 Km
IRCCS Materno Infantile Burlo Garofolo
2,2 Km
Supermercati Supermercati
Pam
240 m
CRAI
310 m
Despar
400 m
Punto Simply MARKET
520 m
naturasi
550 m
Negozi Negozi
OVS
200 m
Nuna Lie
200 m
Il Pane Quotidiano
200 m
Brada Impex
540 m
Panificio Pasticceria Al Casereccio
570 m
Bar Bar
Bar Bianchi
220 m
Bar
230 m
Bar Ispiro
550 m
Bar H
580 m
BarDestino
580 m
Ristoranti Ristoranti
Mea Culpa
120 m
Pizzeria La Perla De Caio Trieste
270 m
Pizza Millenium
280 m
Vulcania
450 m
Pizzeria da Gigi
510 m
Mostra tutto

Caratteristiche

Rif.:
61154513
Piano:
6 di 7 con ascensore (Piano alto)
Balconi:
1
Terrazzi:
1
Camere da letto:
2
Arredamento:
Completo
Mostra tutto
Prezzo Prezzo
€ 288.000
Rata mutuo Rata mutuo
€ 1.357 / mese
Spese annue Spese annue
€ 1.000
Proponi il tuo prezzoProponi il tuo prezzo

Classe Energetica

F
F
F
F
F
F
F
F
F
EP invernale del fabbricato:
EP estiva del fabbricato:
Anno di costruzione:
2000
Riscaldamento:
Autonomo
Tipo impianto:
A radiatori
Tipo alimentazione:
Metano

Ti interessa visionare l'immobile?

Fissa un appuntamento  Fissa un appuntamento

Richiedi informazioni

Clicca su Leggi per aprire l'informativa
* Questi campi sono obbligatori

Calcola il tuo mutuo

Semplice e senza impegno
Anticipo

( % )
Mutuo

( % )

pochi semplici passi

inserisci i tuoi dati
Questionario completato
Grazie per aver richiesto un appuntamento senza impegno con un nostro Consulente del Credito e Assicurativo.

Hai inserito correttamente tutti i dati necessari e a breve riceverai una e-mail con un link da convalidare per inviare i tuoi dati.
Affiliato
Immobiliare San Giovanni Srl
Via Giulia, 108 34126 Trieste (TS)

Il nostro staff


  • Luca Cicuttin
    Affiliato

  • Nicola Capogrosso
    Affiliato

  • Mara Morosi
    Collaboratrice
Via Giulia, 108 34126 Trieste (TS)
Zona: San Giovanni
Mostra su mappa
Affiliato
Immobiliare San Giovanni Srl
Via Giulia, 108 34126 Trieste (TS)

2026 Tecnocasa Franchising S.p.A. - P. IVA 08365160152 - Via Monte Bianco 60/A 20089 Rozzano (MI). Ogni agenzia ha un proprio titolare ed è autonoma. Privacy policy | Policy utilizzo | Cookie policy