Trilocale in vendita

Trieste, Via del Donatello - San Giovanni
€ 198.000
3 locali 3 locali
93 Mq 93 Mq
1 bagno 1 bagno

Trilocale in vendita

Trieste, Via del Donatello - San Giovanni

Descrizione annuncio

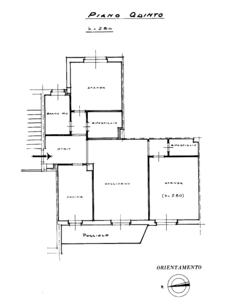
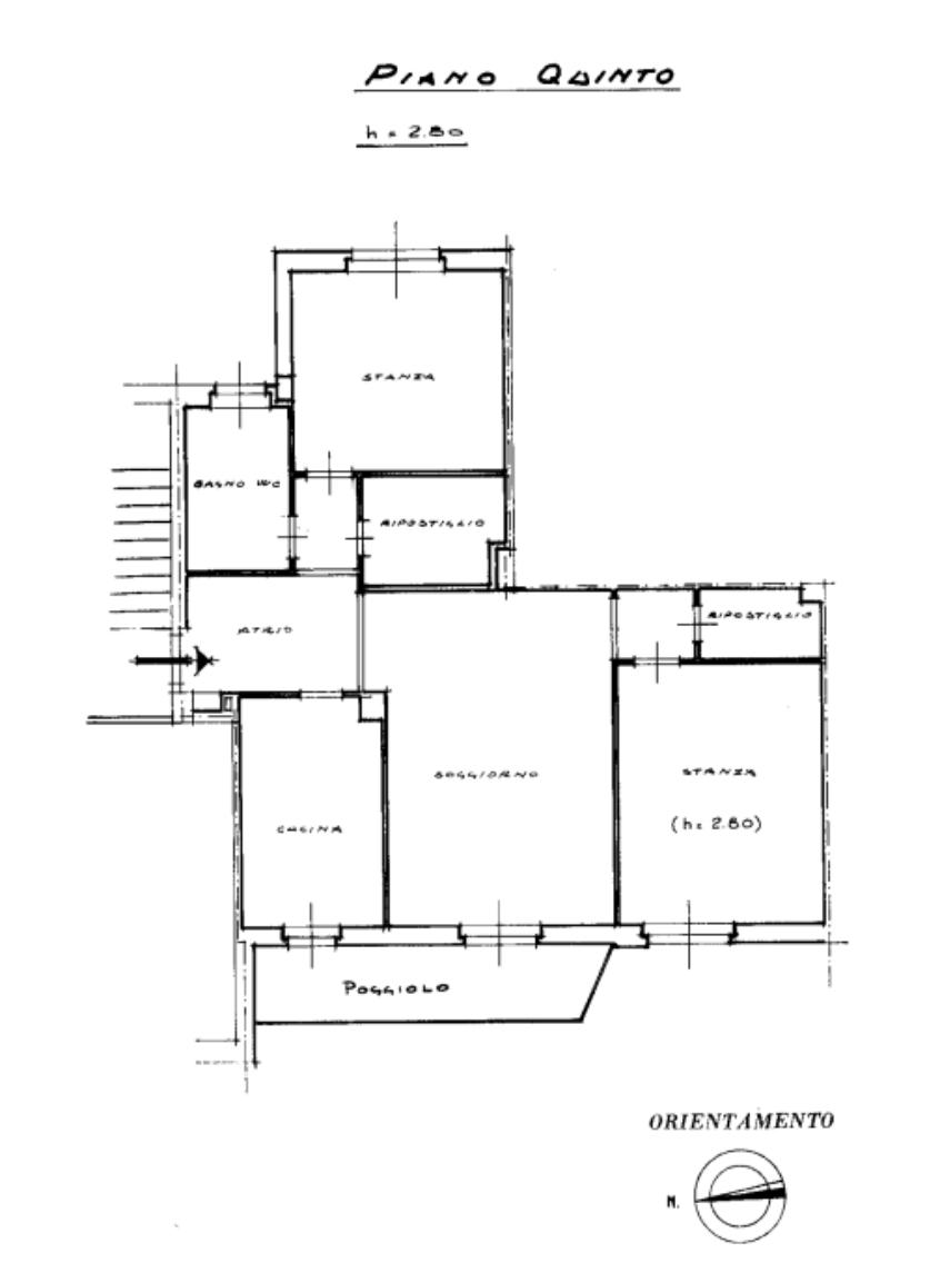
VIALE RAFFAELLO SANZIO: ampio trilocale con balcone al piano alto di uno stabile dotato di ascensore.

L’edificio si trova in Via del Donatello, a due passi della principali attività del rione di San Giovanni, pertanto zona molto servita dai mezzi pubblici e da negozi.

La zona giorno dell’appartamento è composta da una cucina abitabile e da un soggiorno di generose dimensioni, entrambi con accesso al balcone; la zona notte comprende due camere da letto di ottime metrature, di cui una camera singola con cabina armadio e una camera matrimoniale, un bagno completo finestrato e un comodo ripostiglio.

Completa la proprietà un locale fronte strada ai piedi del palazzo, con serranda automatizzata, attualmente adibito ad uso magazzino. Acquistabile separatamente al prezzo di 35.000€

Il condominio è stato oggetto di riqualificazione energetica da SuperBonus 110%, la porta d’ingresso è blindata e gli infissi sono in pvc effetto legno.

Il riscaldamento rientra nelle spese condominiali.

I tempi di consegna sono brevi.

Per ulteriori informazioni contattaci allo 040.578083 o via mail tscn6

Per vedere in anteprima tutte le nostre proposte seguite le storie sulla nostra pagina instagram tecnocasa_sangiovanni_trieste

Lo studio 'Immobiliare San Giovanni srl' affiliato a Tecnocasa è a disposizione per valutazioni e consulenze per qualsiasi tipologia di immobile.

Mostra tutto

Nelle vicinanze

Trasporto pubblico Trasporto pubblico
stazione di Trieste Centrale
stazione di Trieste Centrale
2,3 Km
Cologna Campo Sportivo
Cologna Campo Sportivo
1,6 Km
Cologna Chiesetta
Cologna Chiesetta
1,8 Km
Trasporto pubblico
90 m
Bus 6 e 9
Bus 6 e 9
90 m
Ricariche auto elettriche Ricariche auto elettriche
Eneldrive Comune Di Trieste - Consigli Circoscrizionali
270 m
Eneldrive Ospedale Maggiore Di Trieste
1,6 Km
Area Science Park
2,1 Km
EnelX EVA+ Science Park Trieste
2,3 Km
EnelDrive Granatieri
2,6 Km
Scuole Scuole
Scuola Primaria e dell'Infanzia Fabio Filzi e Antonio Grego
140 m
Liceo Scientifico France Prešeren
290 m
Scuola Secondaria di I Grado Mario Codermatz
300 m
padiglione B
330 m
Università degli Studi di Trieste - Comprensorio San Giovanni
440 m
Farmacia Farmacia
Farmacia
210 m
Farmacia Galeno
420 m
Farmacia San Luigi
910 m
All'Università
940 m
Farmacia All'Amazzone Trionfante
1,1 Km
Ospedali Ospedali
Sanatorio Triestino
1,3 Km
Ospedale Maggiore
1,6 Km
IRCCS Materno Infantile Burlo Garofolo
2,5 Km
Supermercati Supermercati
Despar
50 m
Cooperative Operaie
150 m
Colomban Paolo
380 m
Pam
480 m
Crai di Benci
510 m
Negozi Negozi
Panificio Pasticceria Patti
20 m
Panificio Pasticceria Al Casereccio
140 m
Brada Impex
160 m
Panificio Pasticceria Zega
310 m
Nuna Lie
510 m
Bar Bar
Bar Ispiro
150 m
Bar
290 m
Bar da Nerina
490 m
Bar Bianchi
490 m
Bar San Luigi
720 m
Ristoranti Ristoranti
l'Olandese Volante
10 m
Al Danubio
70 m
Bandiera Gialla
330 m
Pizzeria La Torre
550 m
I Sapori di Toni
550 m
Mostra tutto

Caratteristiche

Rif.:
61131535
Piano:
5 di 6 con ascensore (Piano alto)
Terrazzi:
1
Camere da letto:
2
Arredamento:
Parziale
Condizionamento:
Assente
Mostra tutto
Prezzo Prezzo
€ 198.000
Rata mutuo Rata mutuo
€ 933 / mese
Proponi il tuo prezzoProponi il tuo prezzo

Classe Energetica

D
D
D
D
D
D
D
D
D
EP globale non rinnovabile:
61.80 kW h/m² anno
EP globale rinnovabile:
11.62 kW h/m² anno
EP invernale del fabbricato:
EP estiva del fabbricato:
Anno di costruzione:
1962
Riscaldamento:
Centralizzato
Tipo impianto:
A radiatori
Tipo alimentazione:
Metano

Ti interessa visionare l'immobile?

Fissa un appuntamento  Fissa un appuntamento

Richiedi informazioni

Clicca su Leggi per aprire l'informativa
* Questi campi sono obbligatori

Calcola il tuo mutuo

Semplice e senza impegno
Anticipo

( % )
Mutuo

( % )

pochi semplici passi

inserisci i tuoi dati
Questionario completato
Grazie per aver richiesto un appuntamento senza impegno con un nostro Consulente del Credito e Assicurativo.

Hai inserito correttamente tutti i dati necessari e a breve riceverai una e-mail con un link da convalidare per inviare i tuoi dati.
Affiliato
Immobiliare San Giovanni Srl
Via Giulia, 108 34126 Trieste (TS)

Il nostro staff


  • Luca Cicuttin
    Affiliato

  • Nicola Capogrosso
    Affiliato

  • Mara Morosi
    Collaboratrice
Via Giulia, 108 34126 Trieste (TS)
Zona: San Giovanni
Mostra su mappa
Affiliato
Immobiliare San Giovanni Srl
Via Giulia, 108 34126 Trieste (TS)

2026 Tecnocasa Franchising S.p.A. - P. IVA 08365160152 - Via Monte Bianco 60/A 20089 Rozzano (MI). Ogni agenzia ha un proprio titolare ed è autonoma. Privacy policy | Policy utilizzo | Cookie policy