Trilocale in vendita

Trieste, V.le Raffaello Sanzio - San Giovanni
€ 179.000
3 locali 3 locali
74 Mq 74 Mq
1 bagno 1 bagno

Trilocale in vendita

Trieste, V.le Raffaello Sanzio - San Giovanni

Descrizione annuncio

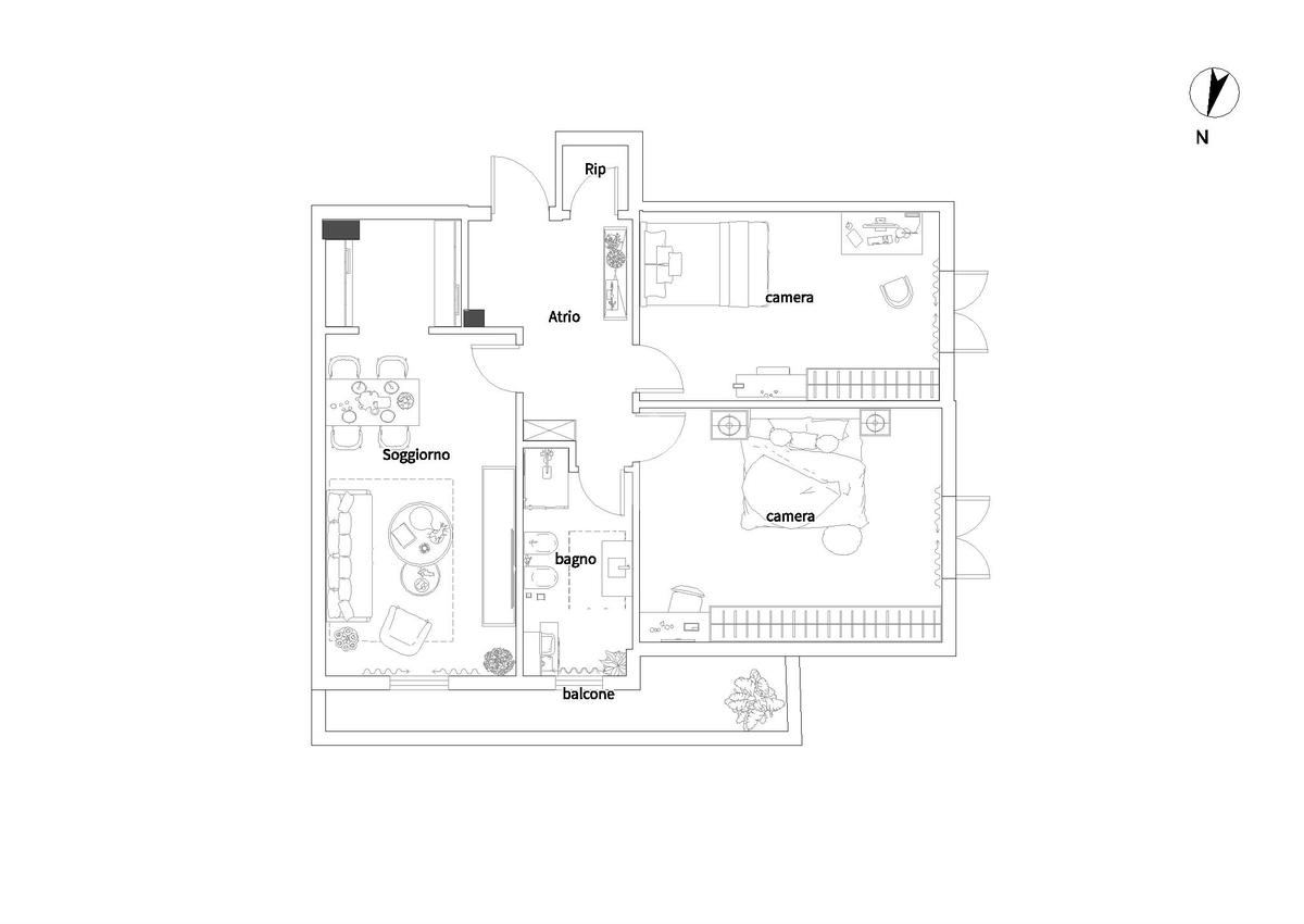
VIALE RAFFAELLO SANZIO: ampio trilocale con balcone al 1° piano di uno stabile dotato di ascensore.

Lo stabile si trova in Viale Raffaello Sanzio, fulcro del rione di San Giovanni, pertanto zona molto servita dai mezzi pubblici e da negozi.

L'appartamento, sito al primo piano di un condominio con ascensore, si compone di ingresso, soggiorno con cucinotto e accesso al balcone, due camere da letto, di cui una singola e una matrimoniale, entrambe di ottime dimensioni, bagno completo finestrato e comodo ripostiglio. Completa la proprietà una cantina.

Il condominio è stato oggetto di riqualificazione energetica da SuperBonus 110%, il quale ha portato l'APE in classe D.

L'immobile, in buone condizioni interne, è abitabile da subito, non necessita di grossi interventi.

Il riscaldamento rientra nelle spese condominiali.

I tempi di consegna sono medio-lunghi.

È possibile acquistare a parte un comodo posto auto in autorimessa nelle immediate vicinanze.

Per ulteriori informazioni contattaci allo 040.578083 o via mail

Per vedere in anteprima tutte le nostre proposte seguite le storie sulla nostra pagina instagram tecnocasa_sangiovanni_trieste

Lo studio 'Immobiliare San Giovanni srl' affiliato a Tecnocasa è a disposizione per valutazioni e consulenze per qualsiasi tipologia di immobile.

Mostra tutto

Nelle vicinanze

Trasporto pubblico Trasporto pubblico
stazione di Trieste Centrale
stazione di Trieste Centrale
2,2 Km
Cologna Campo Sportivo
Cologna Campo Sportivo
1,5 Km
Vetta Scorcola
Vetta Scorcola
1,7 Km
Trasporto pubblico
80 m
Bus 6 e 9
Bus 6 e 9
130 m
Ricariche auto elettriche Ricariche auto elettriche
Eneldrive Comune Di Trieste - Consigli Circoscrizionali
220 m
Eneldrive Ospedale Maggiore Di Trieste
1,6 Km
Area Science Park
2,2 Km
EnelX EVA+ Science Park Trieste
2,4 Km
EnelDrive Granatieri
2,5 Km
Scuole Scuole
Scuola Primaria e dell'Infanzia Fabio Filzi e Antonio Grego
170 m
Scuola Secondaria di I Grado Mario Codermatz
250 m
Liceo Scientifico France Prešeren
330 m
padiglione B
340 m
Università degli Studi di Trieste - Comprensorio San Giovanni
440 m
Farmacia Farmacia
Farmacia
160 m
Farmacia Galeno
460 m
Farmacia San Luigi
890 m
All'Università
900 m
Farmacia All'Amazzone Trionfante
1,0 Km
Ospedali Ospedali
Sanatorio Triestino
1,3 Km
Ospedale Maggiore
1,5 Km
IRCCS Materno Infantile Burlo Garofolo
2,5 Km
Supermercati Supermercati
Despar
70 m
Cooperative Operaie
200 m
Colomban Paolo
420 m
Pam
430 m
Crai di Benci
560 m
Negozi Negozi
Panificio Pasticceria Patti
30 m
Panificio Pasticceria Al Casereccio
90 m
Brada Impex
110 m
Panificio Pasticceria Zega
350 m
Nuna Lie
460 m
Bar Bar
Bar Ispiro
100 m
Bar
330 m
Bar Bianchi
440 m
Bar da Nerina
530 m
Bar San Luigi
690 m
Ristoranti Ristoranti
l'Olandese Volante
50 m
Al Danubio
80 m
Bandiera Gialla
370 m
I Sapori di Toni
530 m
Pizzeria La Torre
590 m
Mostra tutto

Caratteristiche

Rif.:
61078640
Piano:
1 di 5 con ascensore (Piano basso)
Balconi:
1
Camere da letto:
2
Arredamento:
Parziale
Condizionamento:
Assente
Mostra tutto
Prezzo Prezzo
€ 179.000
Rata mutuo Rata mutuo
€ 834 / mese
Spese annue Spese annue
€ 1.600
Proponi il tuo prezzoProponi il tuo prezzo
Immobile valutato con T·Valuta

Classe Energetica

D
D
D
D
D
D
D
D
D
EP globale non rinnovabile:
76.58 kW h/m² anno
EP globale rinnovabile:
11.97 kW h/m² anno
EP invernale del fabbricato:
EP estiva del fabbricato:
Anno di costruzione:
1960
Riscaldamento:
Centralizzato
Tipo impianto:
A radiatori
Tipo alimentazione:
Metano

Ti interessa visionare l'immobile?

Fissa un appuntamento  Fissa un appuntamento

Richiedi informazioni

Clicca su Leggi per aprire l'informativa
* Questi campi sono obbligatori

Calcola il tuo mutuo

Semplice e senza impegno
Anticipo

( % )
Mutuo

( % )

pochi semplici passi

inserisci i tuoi dati
Questionario completato
Grazie per aver richiesto un appuntamento senza impegno con un nostro Consulente del Credito e Assicurativo.

Hai inserito correttamente tutti i dati necessari e a breve riceverai una e-mail con un link da convalidare per inviare i tuoi dati.
Affiliato
Immobiliare San Giovanni Srl
Via Giulia, 108 34126 Trieste (TS)

Il nostro staff


  • Luca Cicuttin
    Affiliato

  • Nicola Capogrosso
    Affiliato

  • Mara Morosi
    Collaboratrice
Via Giulia, 108 34126 Trieste (TS)
Zona: San Giovanni
Mostra su mappa
Affiliato
Immobiliare San Giovanni Srl
Via Giulia, 108 34126 Trieste (TS)

2025 Tecnocasa Franchising S.p.A. - P. IVA 08365160152 - Via Monte Bianco 60/A 20089 Rozzano (MI). Ogni agenzia ha un proprio titolare ed è autonoma. Privacy policy | Policy utilizzo | Cookie policy