Trilocale in affitto

Trieste, Via S. Cilino - San Giovanni
€ 800 / mese
3 locali 3 locali
76 Mq 76 Mq
1 bagno 1 bagno

Trilocale in affitto

Trieste, Via S. Cilino - San Giovanni

Descrizione annuncio

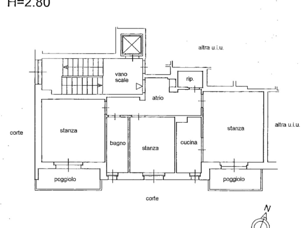
VIA SAN CILINO: proponiamo in locazione trilocale arredato con doppio balcone e ascensore.

La zona giorno dell'appartamento è composta da un luminoso soggiorno con accesso al balcone e da un pratico cucinino; la zona notte si compone di una camera matrimoniale con accesso al secondo balcone e di una camera singola.

Completano l'immobile un bagno finestrato con doccia e un comodo ripostiglio; oltre a lavatrice, lavastoviglie e climatizzatori in dotazione.

Lo stabile dotato di ascensore è situato a due passi dal centro del rione di San Giovanni, nelle immediate vicinanze di tutti i servizi.

Il canone mensile è di €800 + €120 per le spese condominiali.

Contratto 4+4 solo per referenziati.

L'immobile è disponibile dal 1 febbraio.

Per ulteriori informazioni contattaci allo 040.578083 o via mail tscn6

Per vedere in anteprima tutte le nostre proposte seguite le storie sulla nostra pagina instagram tecnocasa_sangiovanni_trieste

Lo studio 'Immobiliare San Giovanni srl' affiliato a Tecnocasa è a disposizione per valutazioni e consulenze per qualsiasi tipologia di immobile.

Mostra tutto

Nelle vicinanze

Trasporto pubblico Trasporto pubblico
stazione di Trieste Centrale
stazione di Trieste Centrale
2,4 Km
Cologna Campo Sportivo
Cologna Campo Sportivo
1,6 Km
Cologna Chiesetta
Cologna Chiesetta
1,8 Km
Trasporto pubblico
150 m
Bus 6 e 9
Bus 6 e 9
160 m
Ricariche auto elettriche Ricariche auto elettriche
Eneldrive Comune Di Trieste - Consigli Circoscrizionali
490 m
Eneldrive Ospedale Maggiore Di Trieste
1,9 Km
Area Science Park
1,9 Km
EnelX EVA+ Science Park Trieste
2,1 Km
Eneldrive Ginestre
2,7 Km
Scuole Scuole
padiglione B
180 m
Liceo Statale Anton Martin Slomšek
220 m
Scuola secondaria di primo grado SS. Cirillo e Metodio
230 m
Scuole
250 m
Istituto Comprensivo Vladimir Bartol
250 m
Farmacia Farmacia
Farmacia Galeno
220 m
Farmacia
420 m
All'Università
1,1 Km
Farmacia San Luigi
1,1 Km
Farmacia All'Amazzone Trionfante
1,3 Km
Ospedali Ospedali
Sanatorio Triestino
1,6 Km
Ospedale Maggiore
1,8 Km
IRCCS Materno Infantile Burlo Garofolo
2,7 Km
Supermercati Supermercati
Cooperative Operaie
120 m
Despar
270 m
Crai di Benci
370 m
Colomban Paolo
370 m
Pam
690 m
Negozi Negozi
Panificio Pasticceria Zega
70 m
Panificio Pasticceria Patti
250 m
Brada Impex
370 m
Panificio Pasticceria Al Casereccio
370 m
Nuna Lie
710 m
Bar Bar
Bar
50 m
Bar da Nerina
330 m
Bar Ispiro
360 m
Bar Bianchi
700 m
Bar San Luigi
960 m
Ristoranti Ristoranti
Bandiera Gialla
130 m
Al Danubio
210 m
l'Olandese Volante
240 m
Pizzeria La Torre
520 m
Suban
520 m
Mostra tutto

Caratteristiche

Rif.:
61158434
Piano:
2 di 5 con ascensore (Piano medio)
Balconi:
2
Camere da letto:
2
Arredamento:
Completo
Condizionamento:
Autonomo
Mostra tutto
Prezzo Prezzo
€ 800 / mese
Spese annue Spese annue
€ 1.500

Classe Energetica

G
G
G
G
G
G
G
G
G
EP invernale del fabbricato:
EP estiva del fabbricato:
Anno di costruzione:
1960
Riscaldamento:
Centralizzato
Tipo impianto:
A radiatori
Tipo alimentazione:
Metano

Ti interessa visionare l'immobile?

Fissa un appuntamento  Fissa un appuntamento

Richiedi informazioni

Clicca su Leggi per aprire l'informativa
* Questi campi sono obbligatori
Affiliato
Immobiliare San Giovanni Srl
Via Giulia, 108 34126 Trieste (TS)

Il nostro staff


  • Luca Cicuttin
    Affiliato

  • Nicola Capogrosso
    Affiliato

  • Mara Morosi
    Collaboratrice
Via Giulia, 108 34126 Trieste (TS)
Zona: San Giovanni
Mostra su mappa
Affiliato
Immobiliare San Giovanni Srl
Via Giulia, 108 34126 Trieste (TS)

2026 Tecnocasa Franchising S.p.A. - P. IVA 08365160152 - Via Monte Bianco 60/A 20089 Rozzano (MI). Ogni agenzia ha un proprio titolare ed è autonoma. Privacy policy | Policy utilizzo | Cookie policy