Trilocale in affitto

Trieste, Rotonda del Boschetto - San Giovanni
€ 750 / mese
3 locali 3 locali
92 Mq 92 Mq
1 bagno 1 bagno

Trilocale in affitto

Trieste, Rotonda del Boschetto - San Giovanni

Descrizione annuncio

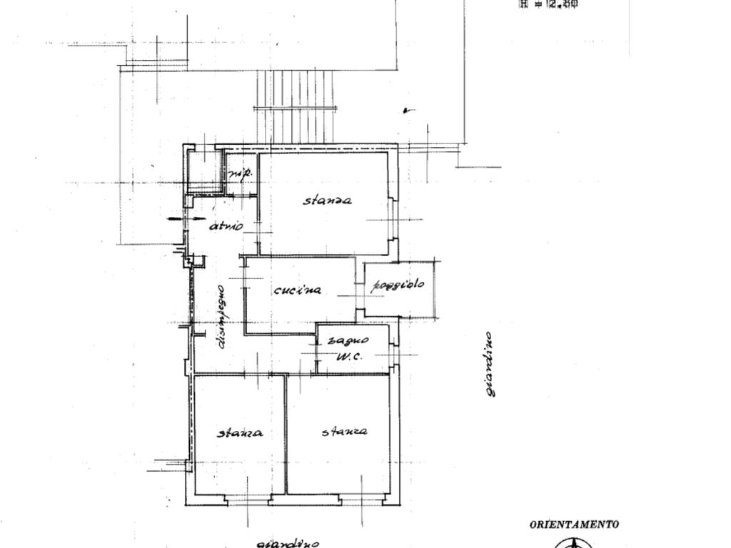
ROTONDA DEL BOSCHETTO: proponiamo in locazione ampio trilocale completamente arredato al piano alto di uno stabile con l’ascensore.

Il palazzo si trova alla Rotonda del Boschetto, a pochi passi dalla Via Giulia e dal Viale R. Sanzio, zona centrale rispetto al Rione di San Giovanni, servita da negozi e mezzi pubblici.

La zona giorno è composta da un luminoso soggiorno e da una cucina abitabile con poggiolo in parte verandato. La zona notte è composta da due camere matrimoniali e da un bagno finestrato con doccia.

Completa l'immobile un comodo ripostiglio.

Da aggiungersi al canone di 750€/mese, vi sono le spese condominiali (comprensive di riscaldamento) che ammontano a 150€/mese salvo conguaglio.

Vengono richiesti contratti 3+2 e il deposito cauzionale è pari a due mensilità del canone.

L'alloggio è disponibile dal 1° gennaio 2026.

Per ulteriori informazioni contattaci allo 040.578083 o via mail tscn6

Per vedere in anteprima tutte le nostre proposte seguite le storie sulla nostra pagina instagram tecnocasa_sangiovanni_trieste

Lo studio 'Immobiliare San Giovanni srl' affiliato a Tecnocasa è a disposizione per valutazioni e consulenze per qualsiasi tipologia di immobile.

Mostra tutto

Nelle vicinanze

Trasporto pubblico Trasporto pubblico
stazione di Trieste Centrale
stazione di Trieste Centrale
2,1 Km
Cologna Campo Sportivo
Cologna Campo Sportivo
1,4 Km
Vetta Scorcola
Vetta Scorcola
1,6 Km
Trasporto pubblico
40 m
Bus 6 e 9
Bus 6 e 9
230 m
Ricariche auto elettriche Ricariche auto elettriche
Eneldrive Comune Di Trieste - Consigli Circoscrizionali
130 m
Eneldrive Ospedale Maggiore Di Trieste
1,5 Km
Area Science Park
2,3 Km
EnelDrive Granatieri
2,4 Km
EnelX EVA+ Science Park Trieste
2,5 Km
Scuole Scuole
Scuola Secondaria di I Grado Mario Codermatz
180 m
Scuola Primaria e dell'Infanzia Fabio Filzi e Antonio Grego
280 m
padiglione B
370 m
Liceo Scientifico France Prešeren
440 m
Università degli Studi di Trieste - Comprensorio San Giovanni
450 m
Farmacia Farmacia
Farmacia
60 m
Farmacia Galeno
560 m
All'Università
790 m
Farmacia San Luigi
890 m
Farmacia All'Amazzone Trionfante
900 m
Ospedali Ospedali
Sanatorio Triestino
1,3 Km
Ospedale Maggiore
1,5 Km
IRCCS Materno Infantile Burlo Garofolo
2,4 Km
Supermercati Supermercati
Despar
180 m
Cooperative Operaie
300 m
Pam
330 m
Colomban Paolo
540 m
Crai di Benci
670 m
Negozi Negozi
Brada Impex
20 m
Panificio Pasticceria Al Casereccio
60 m
Panificio Pasticceria Patti
140 m
Nuna Lie
360 m
OVS
370 m
Bar Bar
Bar Ispiro
20 m
Bar Bianchi
340 m
Bar
410 m
Bar da Nerina
640 m
Bar San Luigi
650 m
Ristoranti Ristoranti
Al Danubio
150 m
l'Olandese Volante
150 m
I Sapori di Toni
470 m
Bandiera Gialla
470 m
Mea Culpa
660 m
Mostra tutto

Caratteristiche

Rif.:
61139933
Piano:
8 di 8 con ascensore (ultimo Piano)
Terrazzi:
1
Camere da letto:
2
Arredamento:
Completo
Condizionamento:
Autonomo
Mostra tutto
Prezzo Prezzo
€ 750 / mese
Spese annue Spese annue
€ 1.800

Classe Energetica

F
F
F
F
F
F
F
F
F
EP globale non rinnovabile:
195.98 kW h/m² anno
EP invernale del fabbricato:
EP estiva del fabbricato:
Anno di costruzione:
1960
Riscaldamento:
Centralizzato
Tipo impianto:
A radiatori
Tipo alimentazione:
Metano

Ti interessa visionare l'immobile?

Fissa un appuntamento  Fissa un appuntamento

Richiedi informazioni

Clicca su Leggi per aprire l'informativa
* Questi campi sono obbligatori
Affiliato
Immobiliare San Giovanni Srl
Via Giulia, 108 34126 Trieste (TS)

Il nostro staff


  • Luca Cicuttin
    Affiliato

  • Nicola Capogrosso
    Affiliato

  • Mara Morosi
    Collaboratrice
Via Giulia, 108 34126 Trieste (TS)
Zona: San Giovanni
Mostra su mappa
Affiliato
Immobiliare San Giovanni Srl
Via Giulia, 108 34126 Trieste (TS)

2025 Tecnocasa Franchising S.p.A. - P. IVA 08365160152 - Via Monte Bianco 60/A 20089 Rozzano (MI). Ogni agenzia ha un proprio titolare ed è autonoma. Privacy policy | Policy utilizzo | Cookie policy